
O proxecto desenvólvese nun edificio histórico de comezos do século XX, deseñado polo arquitecto Daniel Vázquez Gulías.
Trátase dun establecemento de uso comercial e cafetería, que se centra principalmente na venda de discos de vinilo e elementos relacionados coa música, ademais de ofrecer un ambiente dinámico e social.
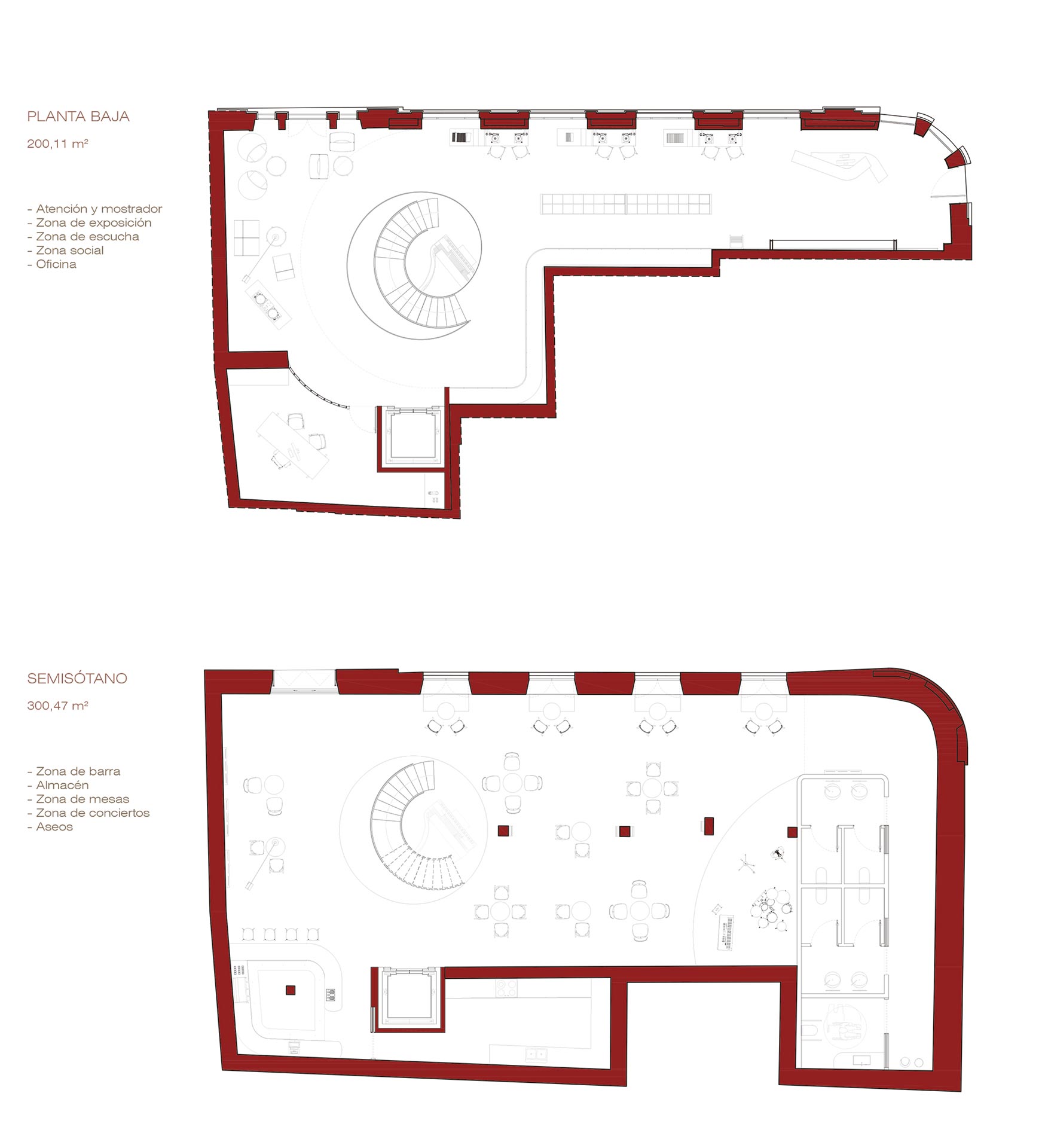
A cada planta asígnaselle un uso específico; neste caso, a planta baixa está destinada ao uso comercial, organizada en zonas de exposición e escoita de vinilos.
O semisótano está destinado á cafetería e ao ámbito social; concíbese como un espazo polivalente para concertos e eventos. O seu deseño busca fomentar a interacción e complementar o uso comercial da planta baixa.
O elemento central do proxecto é a escaleira helicoidal. Máis alá da súa función como comunicación vertical, favorece a idea de que ambos usos coexistan e compartan practicamente o mesmo espazo.